ホーム > 暮らし・環境 > 住まい・景観 > 県営住宅 > 地区別団地一覧上伊那地区 > 大萱団地-2DKY(中耐)

ここから本文です。

更新日:2026年3月23日

大萱団地-2DKY(中耐)

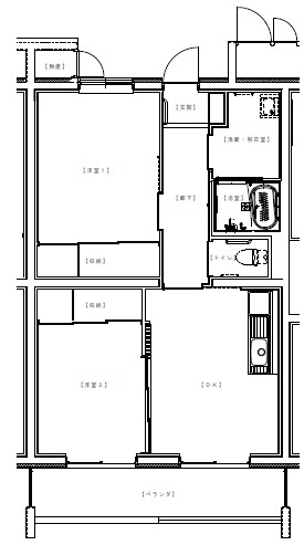
この団地の主な間取を紹介しています


413-797ogaya_a1-2dky.jpg

ガス施設:プロパンガス集中配管

トイレ:水洗

浴室:有り

浴槽風呂釜:有り

駐車場:有り

自転車置き場:有り

エレベーター:有り

専用面積:61.3平方メートル

備考:高齢者配慮

 

 

 

この団地についての問い合わせ先

伊那建設事務所管内
長野県住宅供給公社伊那管理センター
〒396-8666伊那市荒井3497
直通:0265-98-7450
FAX:0265-98-7453
E-mail:njkk-ina@bf.wakwak.com
伊那建設事務所建築課
直通:0265-76-6831

より良いウェブサイトにするためにみなさまのご意見をお聞かせください

このページの情報は役に立ちましたか?

このページの情報は見つけやすかったですか?