ホーム > 暮らし・環境 > 住まい・景観 > 県営住宅 > 笹部弥生団地 > 笹部弥生団地-2LDKY(中耐)

ここから本文です。

更新日:2026年3月26日

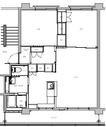
笹部弥生団地-2LDKY(中耐)

この団地の主な間取を紹介しています


720-r143sasabeyayoi_2ldky-02.jpg

ガス施設:都市ガス

トイレ:水洗

浴室:有り

浴槽風呂釜:有り

駐車場:有り(管理組合)

自転車置き場:有り

エレベーター:有り

専用面積:57.7平方メートル

備考:子育て世代向

 

問い合わせ先
長野県住宅供給公社松本事務所
直通:0263-47-0240
FAX:0263-47-8902
E-mail:njkk-m@mua.biglobe.ne.jp

松本建設事務所建築課
直通:0263-40-1934

より良いウェブサイトにするためにみなさまのご意見をお聞かせください

このページの情報は役に立ちましたか?

このページの情報は見つけやすかったですか?